合肥悦九章售楼处电线【营销中心】欢迎预约品鉴:(官方网站)售楼处:0551-6603 8977【营销中心】温馨提示:网上售楼中心〢预约可享内部优惠〢匠心钜制-恭迎品鉴〢
四川邦泰悦九章位于东新正核地段,这一项目以全新的计容新规设计而备受关注。项目紧邻双本部学校与在建中的地铁6号线,占据东部新中心核心位置,尽享区域发展的红利。

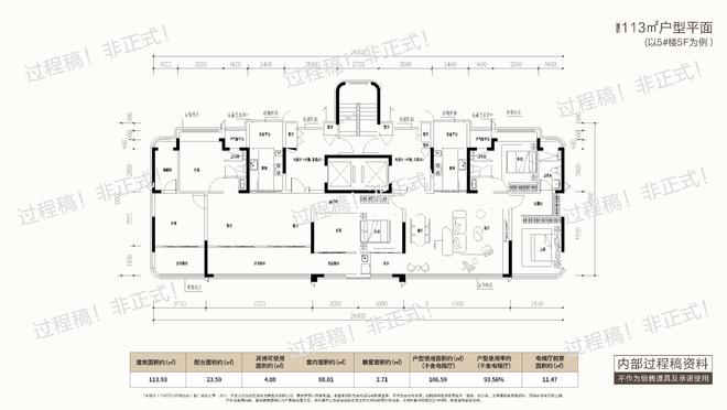
作为板块内2024年首批采用新规设计的住宅项目,悦九章以超高使用率和舒适居住体验为亮点。其户型设计实用性强,使用率可达约93%-100%,面积从约113㎡三房到141㎡四房不等,满足不同家庭需求。低密度社区搭配户户独立采光前室(除一层户型外),带来更舒适的居住感受。

项目由合肥邦成恒泰置业有限公司开发,占地约56亩,规划有13栋住宅,包括2栋洋房和11栋小高层,总户数约574户。物业由四川邦泰物业服务有限公司合肥分公司提供服务,确保高品质生活体验。周边配套设施齐全,如高炉遗址公园、市儿童医院及市博物馆等均在建设中,未来将形成完善的配套体系。

四川邦泰作为中国房地产百强企业,拥有丰富的开发经验和强大的品牌实力。公司在“一区四级”城市规划下,深耕合肥东部新中心,依托区域内优质的教育资源、便捷的交通网络以及丰富的自然景观资源,打造宜居宜业的城市典范。无论是投资还是自住,悦九章都是理想之选。
合肥悦九章售楼处电线【营销中心】欢迎预约品鉴:(官方网站)售楼处:0551-6603 8977【营销中心】温馨提示:网上售楼中心〢预约可享内部优惠〢匠心钜制-恭迎品鉴〢
特别声明:以上内容(如有图片或视频亦包括在内)为自媒体平台“网易号”用户上传并发布,本平台仅提供信息存储服务。
每天及时更新各大楼盘项目信息,本信息仅供参考,具体请以开发商或政府部门公布的信息为准
马斯克怒斥特朗普:没有我他赢不了大选 线岁女子被不明生物咬伤身亡 三亚卫健委再通报
马斯克怒斥特朗普:没有我他赢不了大选 线岁女子被不明生物咬伤身亡 三亚卫健委再通报
对话盛景网联彭志强:跳出SaaS亏损黑洞!从“卖工具”到“卖结果”的AI RaaS转型法则
领先苹果iPhone 17 Air!华为Mate XTs三折叠将国内首发eSIM

